Osiedle SŁONECZNE Budynek D1
Rzeszów

Osiedle SŁONECZNE Budynek D1
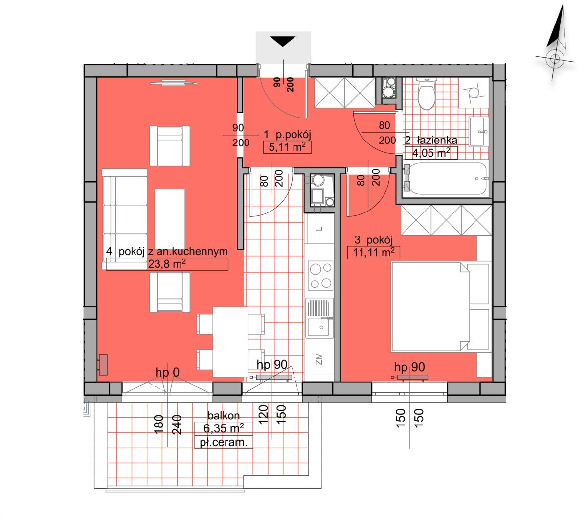
Nr mieszkania 32
Liczba pokoi 2
Piętro 1
Pow. mieszkalna 44.07 m2
Pow. ogródka/tarasu 6.35 m2
cena na telefon cena na telefon