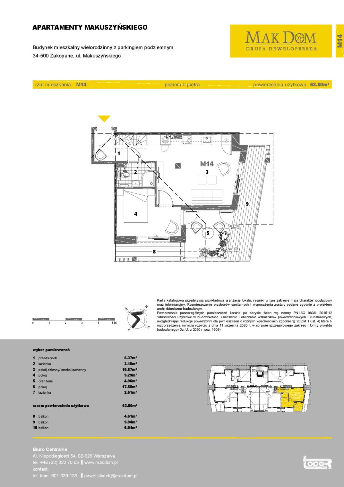
Willa Makuszyńskiego 14A
Zakopane

Willa Makuszyńskiego 14A
Nr mieszkania M14
Liczba pokoi 3
Piętro 2
Pow. mieszkalna 63.80 m2
Pow. ogródka/tarasu 20.59 m2
cena na telefon cena na telefon