SŁONECZNE PIASKI 2 - BUD. B3
Puławy, ul. Woźnego / Bernaciaka "Orlika"

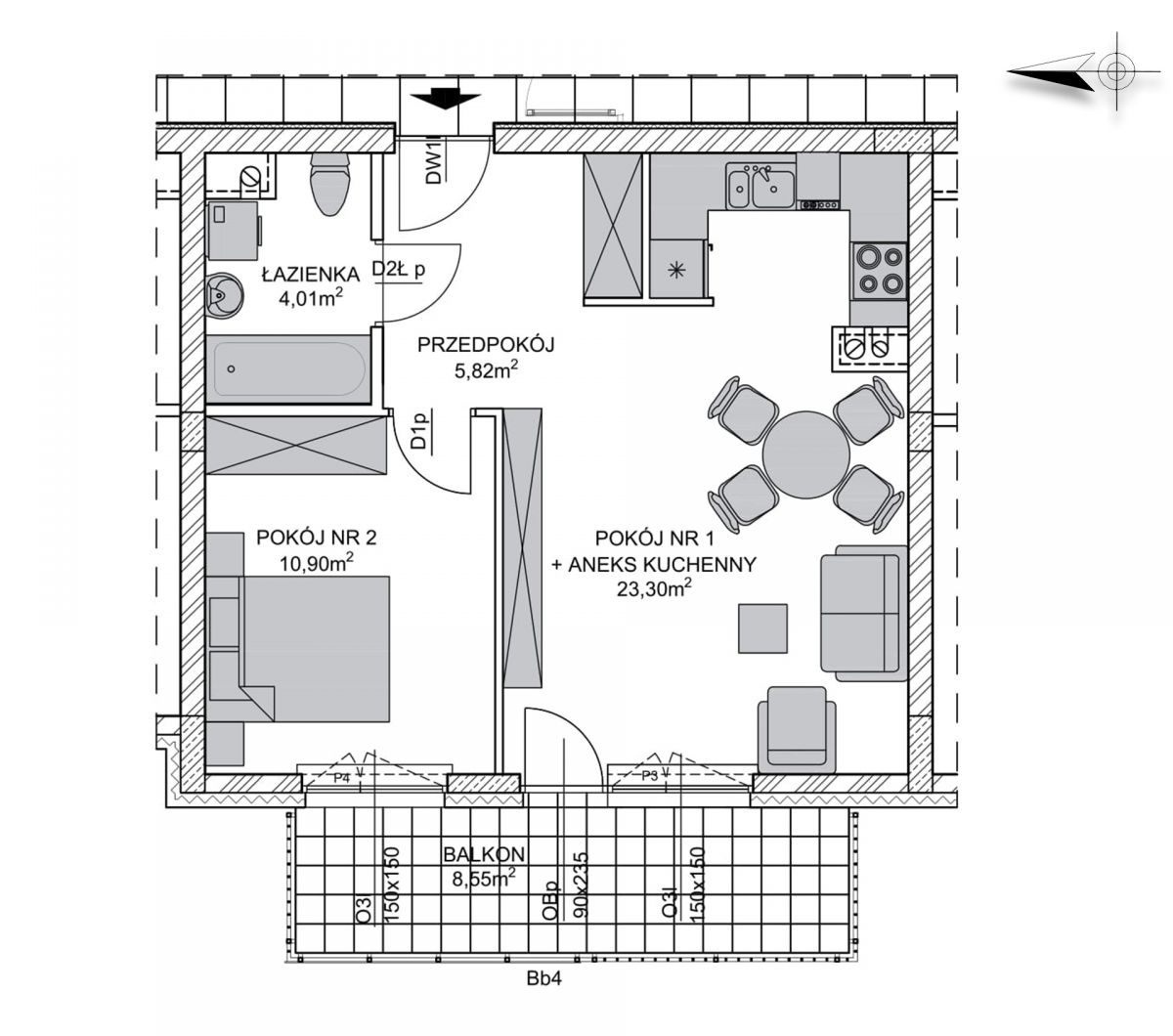
SŁONECZNE PIASKI 2 - BUD. B3
Nr mieszkania 36
Liczba pokoi 2
Piętro IV PIĘTRO
Pow. mieszkalna 44.03 m2
cena na telefon cena na telefon