SŁONECZNE PIASKI 2 - BUD. B3
Puławy, ul. Woźnego / Bernaciaka "Orlika"

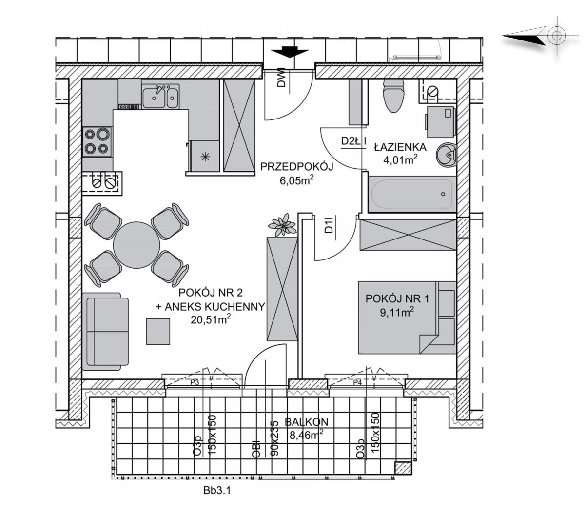
SŁONECZNE PIASKI 2 - BUD. B3
Nr mieszkania 29
Liczba pokoi 2
Piętro III PIĘTRO
Pow. mieszkalna 39.68 m2
cena na telefon cena na telefon