SŁONECZNE PIASKI 2 - BUD. B3
Puławy, ul. Woźnego / Bernaciaka "Orlika"

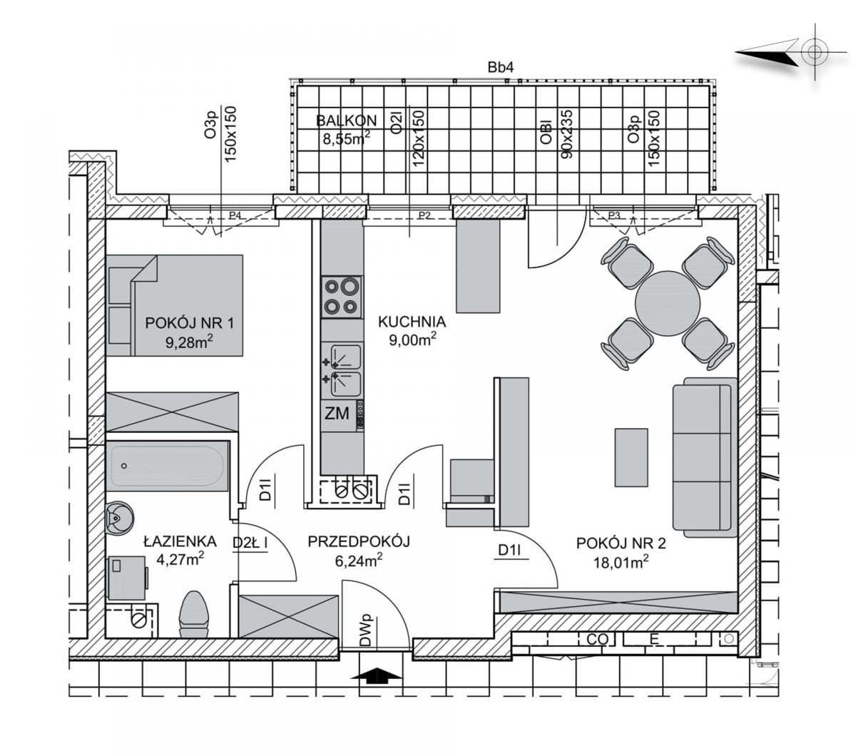
SŁONECZNE PIASKI 2 - BUD. B3
Nr mieszkania 8
Liczba pokoi 2
Piętro PARTER
Pow. mieszkalna 46.79 m2
cena na telefon cena na telefon