SŁONECZNE PIASKI 2 - BUD. B3
Puławy, ul. Woźnego / Bernaciaka "Orlika"

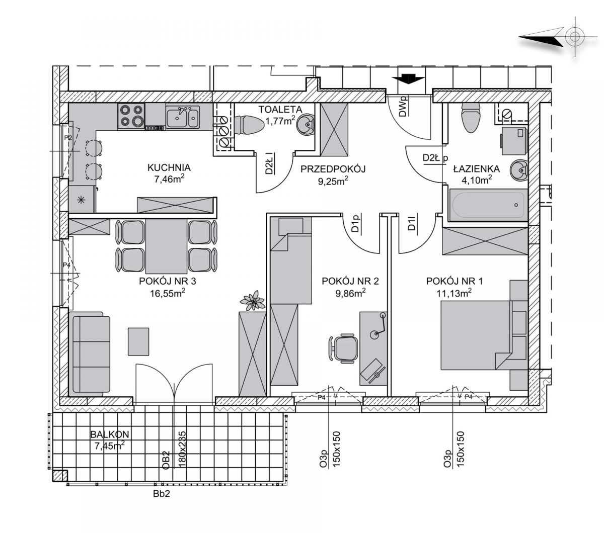
SŁONECZNE PIASKI 2 - BUD. B3
Nr mieszkania 6
Liczba pokoi 3
Piętro PARTER
Pow. mieszkalna 60.12 m2
cena na telefon cena na telefon