OSIEDLE MAGNOLIA II Zad.3
Budynek B5 - JUŻ W SPRZEDAŻY

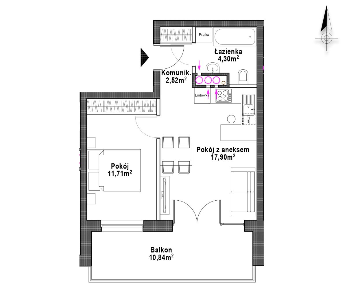
Nr mieszkania B34
Liczba pokoi 2
Piętro 3
Pow. mieszkalna 36.43 m2
cena na telefon cena na telefon