OSIEDLE MAGNOLIA II Zad.3
Budynek B5 - JUŻ W SPRZEDAŻY

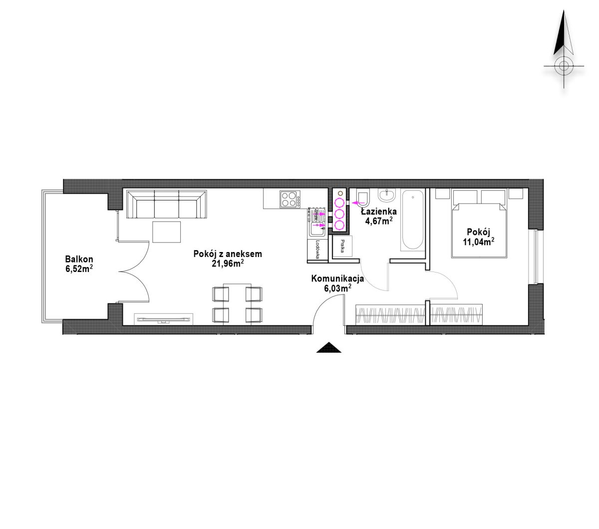
Nr mieszkania B21
Liczba pokoi 2
Piętro 2
Pow. mieszkalna 43.70 m2
cena na telefon cena na telefon