OSIEDLE MAGNOLIA II Zad.3
Budynek B5 - JUŻ W SPRZEDAŻY

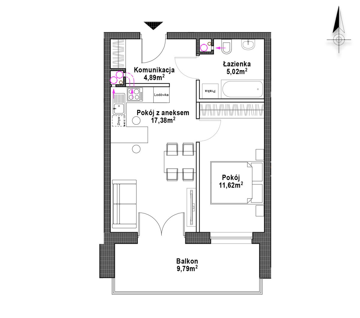
Nr mieszkania B17
Liczba pokoi 2
Piętro 1
Pow. mieszkalna 38.91 m2
Cena brutto lokalu 369 645 zł