APARTAMENTY SARNOWSKIEGO - CENTRUM
JUŻ W SPRZEDAŻY

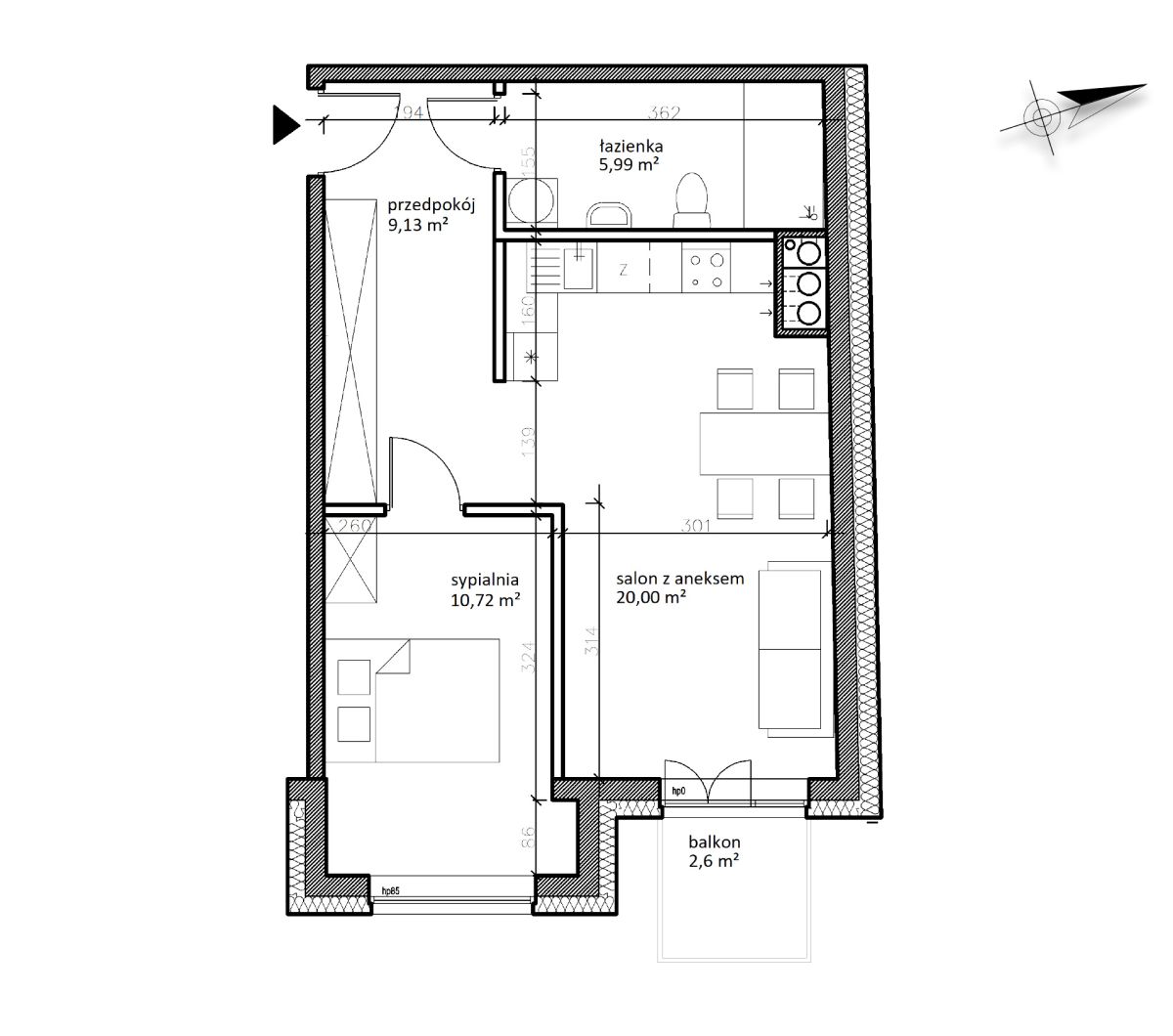
Nr mieszkania 47
Liczba pokoi 2
Piętro 4
Pow. mieszkalna 45.84 m2
cena na telefon cena na telefon