APARTAMENTY SARNOWSKIEGO - CENTRUM
JUŻ W SPRZEDAŻY

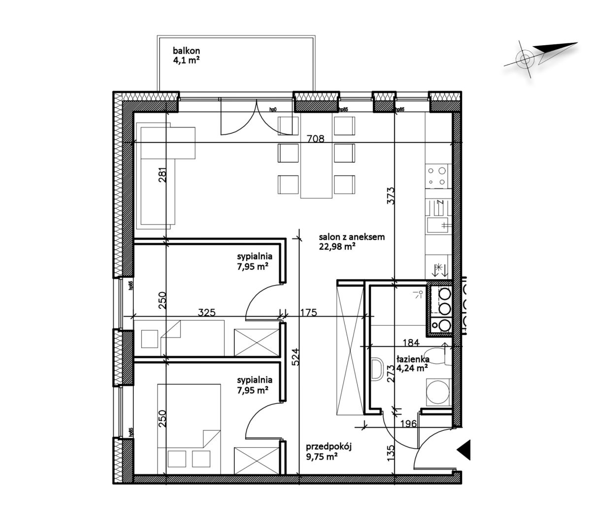
Nr mieszkania 42
Liczba pokoi 3
Piętro 3
Pow. mieszkalna 52.87 m2
cena na telefon cena na telefon