APARTAMENTY SARNOWSKIEGO - CENTRUM
JUŻ W SPRZEDAŻY

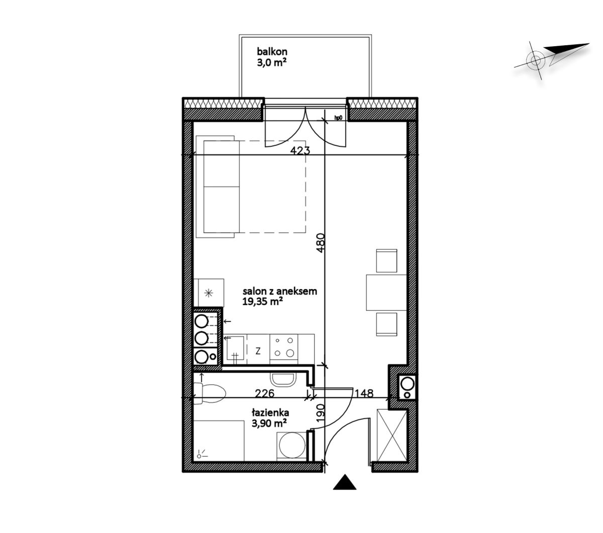
Nr mieszkania 32
Liczba pokoi 1
Piętro 2
Pow. mieszkalna 26.36 m2
cena na telefon cena na telefon