APARTAMENTY SARNOWSKIEGO - CENTRUM
JUŻ W SPRZEDAŻY

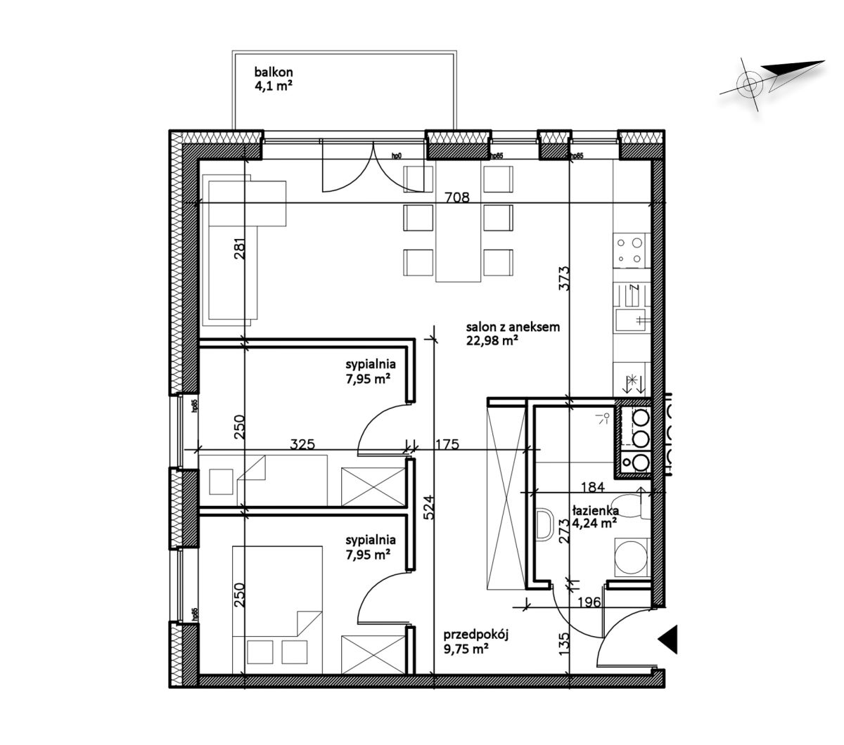
Nr mieszkania 31
Liczba pokoi 3
Piętro 2
Pow. mieszkalna 52.87 m2
cena na telefon cena na telefon