OSIEDLE MAGNOLIA II Zad.1
Gotowe do odbioru- SPRZEDANE

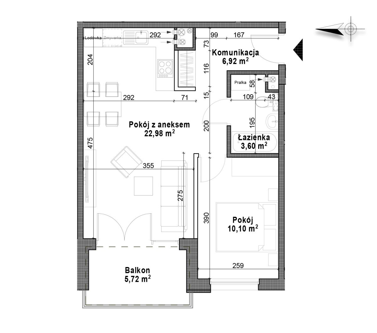
Nr mieszkania B9
Liczba pokoi 2
Piętro 1
Pow. mieszkalna 43.60 m2
cena na telefon cena na telefon