OSIEDLE MAGNOLIA II Zad.1
Gotowe do odbioru- SPRZEDANE

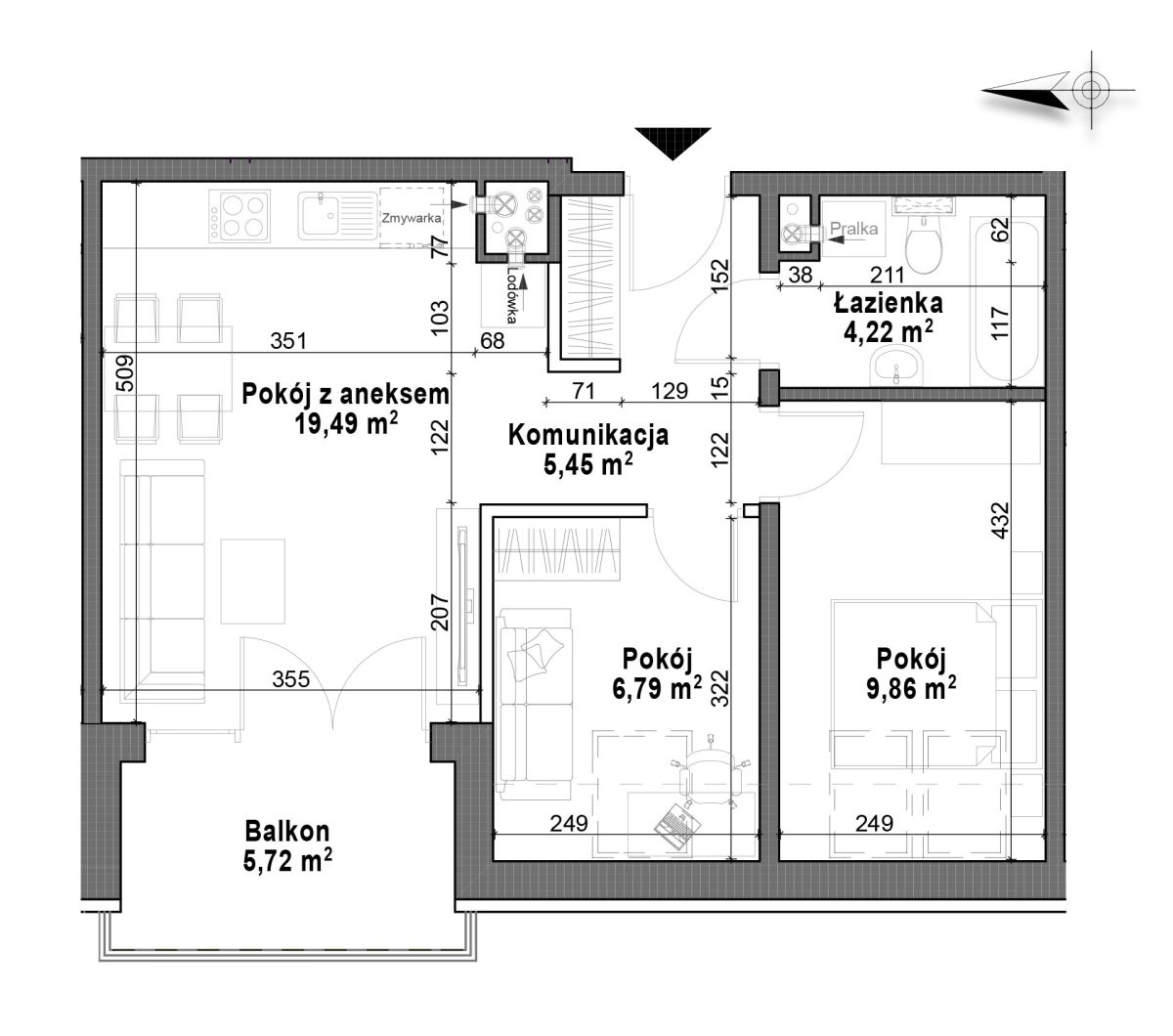
Nr mieszkania A15
Liczba pokoi 3
Piętro 3
Pow. mieszkalna 45.81 m2
cena na telefon cena na telefon