OSIEDLE MAGNOLIA II Zad.1
Gotowe do odbioru- SPRZEDANE

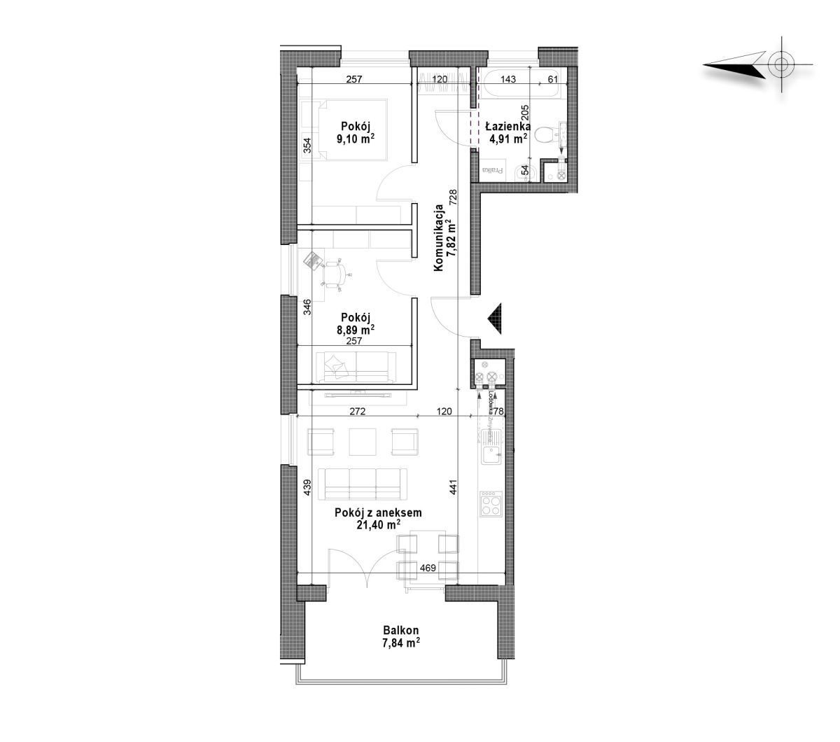
Nr mieszkania A12
Liczba pokoi 3
Piętro 2
Pow. mieszkalna 52.12 m2
cena na telefon cena na telefon