OSIEDLE MAGNOLIA II Zad.1
Gotowe do odbioru- SPRZEDANE

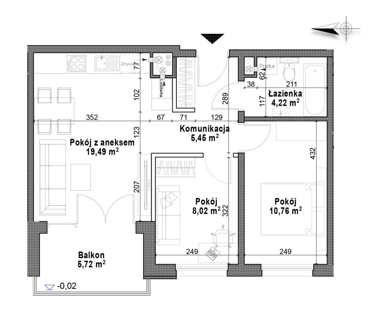
Nr mieszkania A11
Liczba pokoi 3
Piętro 2
Pow. mieszkalna 47.94 m2
cena na telefon cena na telefon