OSIEDLE MAGNOLIA II Zad.1
Gotowe do odbioru- SPRZEDANE

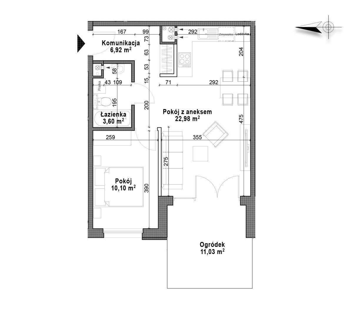
Nr mieszkania A2
Liczba pokoi 2
Piętro 0
Pow. mieszkalna 43.60 m2
Pow. ogródka/tarasu 11.03 m2
cena na telefon cena na telefon