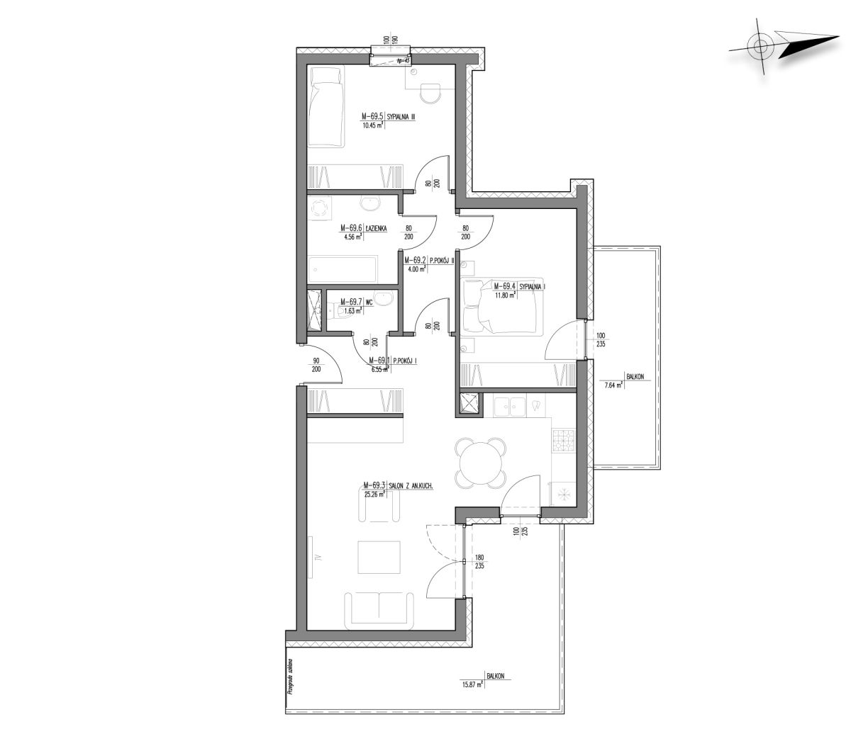
Słoneczna Dąbrowa "A3"
ul. Granata

Słoneczna Dąbrowa
Nr mieszkania 69
Liczba pokoi 3
Piętro 5
Pow. mieszkalna 64.25 m2
cena na telefon cena na telefon