Nowe Sokolniki "B5"
ul. Wyścigowa

Nowe Sokolniki
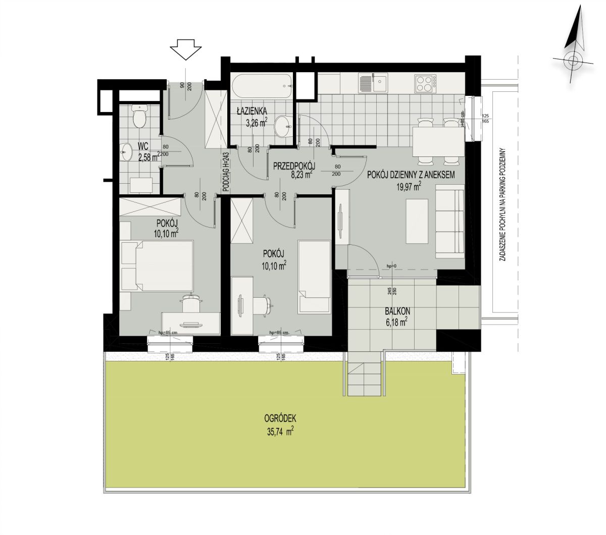
Nr mieszkania 34
Liczba pokoi 3
Piętro 0
Pow. mieszkalna 54.24 m2
cena na telefon cena na telefon