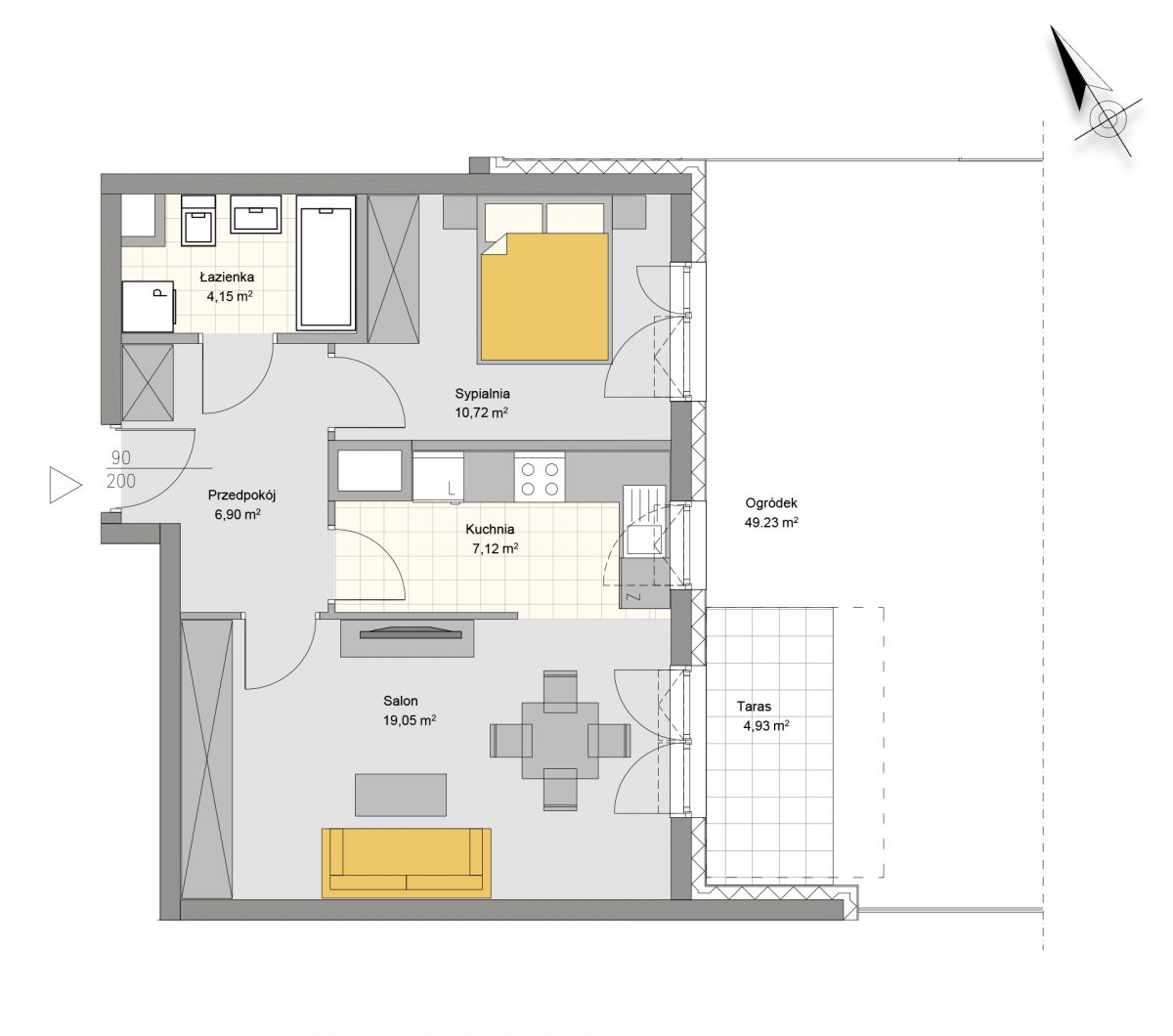
Słoneczne Ogrody "G"
ul. Wrońska

Słoneczne Ogrody
Nr mieszkania 2
Liczba pokoi 2
Piętro 0
Pow. mieszkalna 47.94 m2
Pow. ogródka/tarasu 49.23 m2
cena na telefon cena na telefon